Modern house with dark brick facade, large front window reflecting trees, wooden accents, and surrounding greenery.

House 192

A contemporary extension and upgrade of 1960s family home

Planning consent for this extensive remodel was granted in Autumn 2018, following a period of detailed design development. The client had acquired this mid-century modern home in Merseyside, attracted by its prime location within a sought-after residential area. While traces of the original architectural intent remained, the property had undergone several unsympathetic alterations and extensions over the years, leaving it in need of significant fabric upgrades. Its sprawling layout also resulted in disconnected spaces, making it impractical for a young family’s needs.

HSA’s challenge was to consolidate the living areas and reimagine the home’s appearance. Using both physical models and CAD visualisations, we collaborated closely with the client to communicate ideas and explore various massing options suitable for the site. The design process also carefully considered the surrounding mature trees, landscaping, and neighbouring properties.

The final solution retained the existing footprint, minimising the need for new foundations. A new extension over the centre of the plan introduced a first floor and additional bonus spaces within the roof. The phased construction approach allows the main living areas to be more efficiently arranged, with an optional leisure space opening directly onto the garden. Materials were thoughtfully selected to complement the existing palette of grey brick and timber, resulting in a home that confidently embraces a bold new identity whilst acknowledging its mid-century origins.

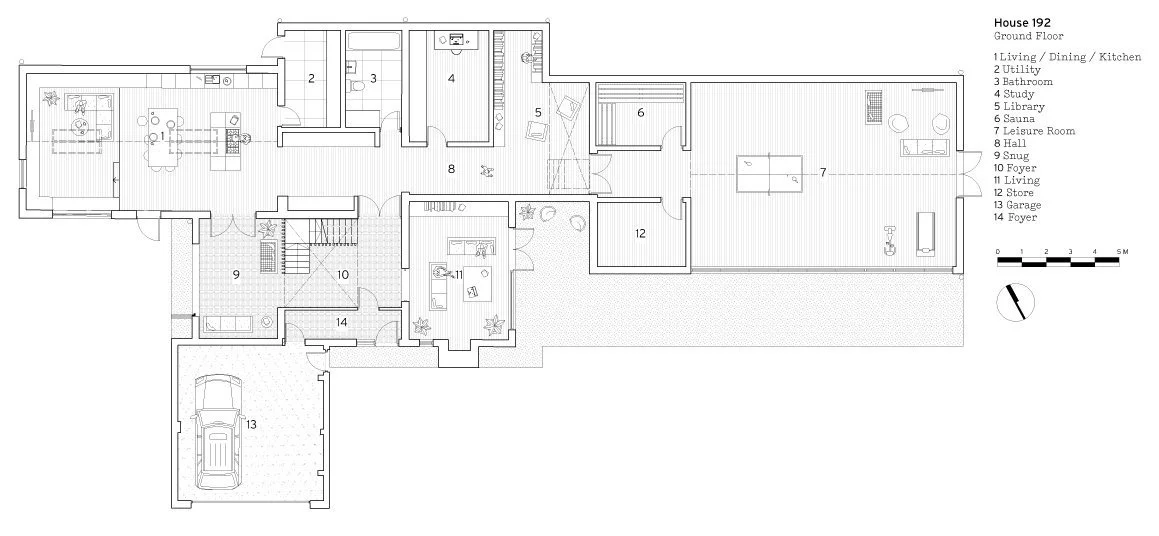
Floor plan of House 192 showing various rooms including living room, kitchen, utility, bathroom, study, library, sauna, leisure room, hall, foyer, living, store, garage, and details of layout and measurements.
Floor plan of House 192, second floor, showing 1 bedroom, 2 bedrooms, 3 ensuite, 4 bathroom, 5 landing, 6 guest bedroom, 7 bathroom, 8 closet, and 9 master bedroom, with a scale and compass in the lower right corner.
Architectural floor plan of the second floor of House 192, showing mezzanine levels, guest bedroom, and stairways, with labeled rooms and a scale.
Illustration of a modern house with a combination of gray, black, and wood exterior, large windows, and lush green trees in the background.
Hands holding a miniature architectural model of a building over a white paper and other house models on a wooden surface.
Architectural model of a modern house on a wooden table against a white brick wall, with a potted plant in the background.
Architectural model of a modern house on a wooden table against a white brick wall background.

Related Projects

House 132

Extension on a Victorian family home

House 219

Reconfiguration for a semi-detached home

Liverpool Townhouse Competition

Competition winner for sustainable retrofit idea